Не упусти свой шанс! Последние акции от застройщиков  ▼

Продается 3-комнатная квартира, 8 Марта ул., 29

16 800 000 Р

Щелково г. (Щелково гор. округ)

8 Марта ул.29

Дата публикации: 18 февраля 2026

Дата обновления: 30 марта 2026

Телефон: 
Показать телефон

+7 (499) 372-92-13

Агентство:  МИЭЛЬ

От застройщика: 0 квартир в продаже

Этаж: 12 / 14

Общая: 114,5 м2

Жилая: 70 м2

Кухня: 15 м2

Комнаты: не указано

Балкон/лоджия: не указано

Лифт: есть лифт

Окна: окна на улицу

Санузел: совмещенный

Мусоропровод: не указано

Состояние квартиры: дизайнерский ремонт

Тип дома: кирпичный

Год постройки: 2015

Территория: не указано

Парковка: не указано

Статус сделки: продажа

Сделка: прямая продажа

Собственность: не указано

Основание права собственности: не указано

Описание

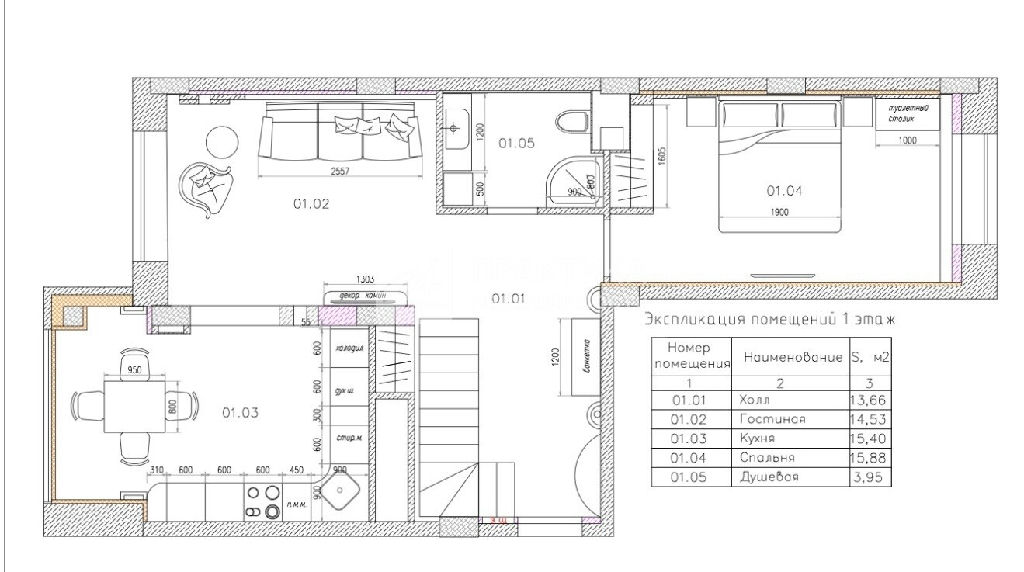
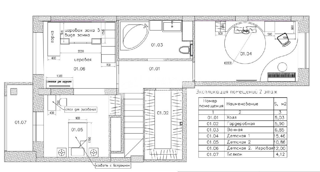
Код объекта: 2046072.Четырехкомнатная двухуровневая квартира с изолированными комнатами.С выдачей письменного и заверенного отчета о юридической проверки квартиры и собственника. 4-х комнатная 2-х уровневая квартира с прекрасной планировкой, расположена на 12 этаже 12-этажного кирпичного дома. Изолированные комнаты, два санузла, теплые полы, шумоизоляция по всей площади квартиры. Описание квартиры: Общая площадь - 114,5 кв.м. 1 этаж:Кухня - 15,4 м2Гостиная - 14,5 м2Спальня - 15,8 м2Санузел 1 - 4 м2Холл - 13,6 м2 2 этаж:Спальня - 15.4 м2Детская спальная комната + игровая 26 м2Санузел 2 - 6,9 м2Гардеробная - 5,9 м2Застекленная лоджия - 4,1 м2Холл - 5 м2 Этаж - 12Год постройки дома - 2015 В квартире были заменены все стеклопакеты на премиальный сегмент с багетным профилемЛестница по технологии монокосоур - несущая конструкция из массива дуба, с коваными перилами, дополнена подсветкой Мебель: КухняШкафы-купеГардеробнаяОстальная мебель по договоренности Дом и двор: Наземная парковка во двореВ доме пассажирский и грузовой лифтПреимущества расположения дома - школа в 2-х минутах ходьбы, два детских садика в пяти минутах ходьбы Инфраструктура рядом: магазины и супермаркетыдетские сады и школааптекисалоны красотыспортивный клуббыстрый выезд на Щелковское шоссеНедалеко расположено озеро и зеленая территория для прогулок на свежем воздухе. Транспортная доступность: Остановка общественного транспорта в 3-х минутах ходьбы от домаДвижение общественного транспорта до Москвы ( Щелковский вокзал и метро Щелковская) 40-50 минут. Условия продажи: Квартира без обременений и ограниченийВ собственности более 5 летПолная стоимость в договореСвободная продажаПодходит для ипотеки. Преимущества покупки квартиры с Миэль: Квартира будет продаваться с юридическим сопровождением, проверкой самой недвижимости и собственника.По результатам будет выдан письменный правовой сертификат с отчетам по 10-15 пунктам проверки.Так же покупатель получает пакет бонусов со скидками от партнеров компании на товары для обустройства вашей новой жилой площади. Приобретая недвижимость с Миэль, вы приобретаете спокойствие за свое будущее. *по желанию клиента возможно страхование титула. Просмотр квартиры по предварительной договоренности.

Квартира на карте

ПанорамыКарта
Спецпредложения
Добавить объявление